+7 904 010-42-29
+7 904 010-42-30
info@ndomtver.ru
callback_icon
Обратный звонок
Меню
  • Главная
  • Брусовые домокомплекты
  • Каркасные дома
  • Дачные дома
  • Садовые дома
  • Бани
  • Фундаменты
  • Акции
  • Комплектация сруба
  • Мы построили
  • Контакты
  • Отзывы и комментарии

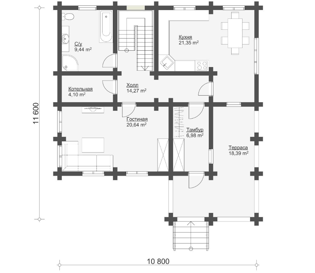
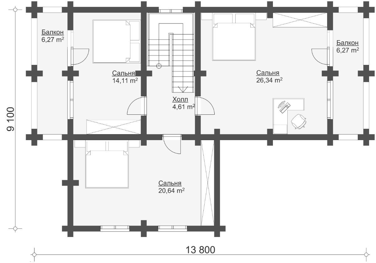
Проект дома ДК-177

Поделиться



150 мм



200 мм


250 мм





Заказать

Поделиться

Строительная компания "Новый дом Тверь". Копирование информации с сайта без разрешения запрещено.
Информация носит справочный характер, не является публичной офертой.
Конструктор интернет-магазина
Nethouse