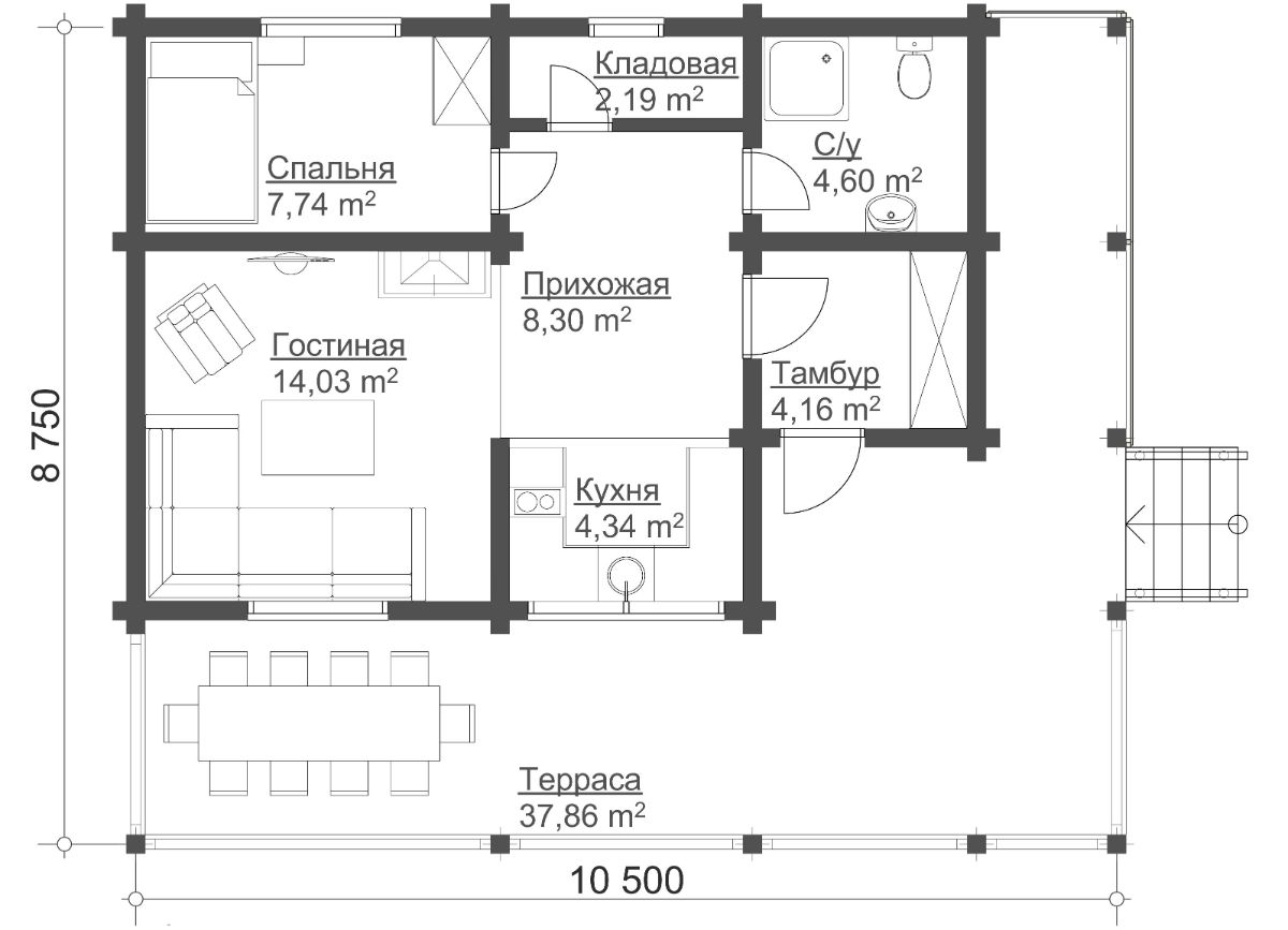
Проект дома ДП-81

S Общая - 81 м.кв
Материал - брус 200мм.
Объем материала - 49 м.куб
S кровли - 140 м.кв
Осевые габариты - 8,75х10,5 м.
H1 - 2,6 м. (подъем боковой стены)


146 х 144 мм

 


931 000 руб.

 

Сборка - от 4500 руб. за м3

Крыша+кровля -от 1500 руб. за м2


146 х 192 мм


1026 000 руб.

 

Сборка - от 4500 руб. за м3

Крыша+кровля - от 1900 руб. за м2

 

143 х 190 мм

(сухой, камерная сушка)

 

1215 000 руб.

 

Сборка - от 4500 руб. за м3

Крыша+кровля -от 1900 руб. за м2



Конструктивный  элемент сруба.

Используемый материал.

Стеновой домокомплект с фрезерованием

"чашек" и торцеванием по проекту (внешние стены,перегородки, терраса, крыльцо)

Профилированный брус (сосна, ель) выбранного Вами сечения. Профиль"гребёнка"

либо "шип-паз".

Подкладочная доска

( фундамент ЖБ плита либо ленточный)

200 х 50 мм; 200 х 100 мм.

Обвязка брусом двойная

(фундамент свайно-винтовой либо ЖБ сваи)

первая 250(200) х 150 мм; вторая 200 х 150 мм.

Перекрытия первого этажа ( лаги пола)

200 х 100 мм; 150 х 100 мм.

Антисептирование обвязки, лаги пола

Neomid 430 невымываемый для дерева 1:9

Перекрытия второго этажа (потолочные балки)

200 х 100 мм; 200 х 50 мм; 150 х 100 мм.

Стропиьная система крыши (стропила)

200 х 50 мм; 150 х 50 мм.

Контробрешетка крыши

50 х 50 мм; 50 х 25 мм.

Обрешотка крыши

150 х 25 мм.

Подкровельная изоляция

Паропроницаемая  мембрана "Ондутис" либо аналоги

Финишное кровельное покрытие

Металлочерепица 0,5 мм. Ral 8017,6005,3005.

Утеплитель в угловые соединения

Джут - лён; Шелтер Эко; ПСУЛ.

Скрепление венцов сруба

нагель берёзовый D25мм.

Скрепление верхних венцов, франтонов

Крепежный узел "СИЛА".

Используемый крепеж

Подвесы балок перекрытия, скользящие опоры стропил, усадочные домкраты, метизы.



Доставка осуществляется грузовым автомобилей с прицепом на базе "Камаз". Грузовым автомобилей без прицепа на базе Газ "Валдай". Малотонажным автомобилем на базе Газ "Газель". Разгрузка осуществляется автокраном на базе "Камаз" г/п 20 т. Манипулятор на базе "Камаз" г/п 3 т.

 

Заказать

Удалить товар

Вы точно хотите удалить выбранный товар? Отменить данное действие будет невозможно.